XGN66-12高压开关柜
1. 中置柜
一、KYN28-12中置柜
KYN28-12高压开关柜概述
KYN28-12型铠装移开式交流金属封闭开关设备,因其真空断路器开关常放在中间,所以简称为KYN28-12中置柜。适用于三相交流50Hz电力系统,用于电力系统发电、输电、配电、电能转换和消耗中起着通断、控制或保护等作用。额定电压为3.6KV~12KV,其特点是配装的真空断路器为中置式,即断路器位于开关柜前柜的中部,因此下部空间节省下来可用于其它方案的扩展或作为电缆室用。主要应用场合有:城市居民、大型二次变电站、开闭所、工矿企业、商场、机场、地铁、风力发电、医院、体育场、铁路、隧道等。
KYN28-12中置柜型号及其含义

主要特点
1、 高压开关柜体结构采用敷铝锌板经CNC机床使用多重折弯工艺加工之后栓接而成。
2、所有操作均在柜门关闭状态下进行。
3、防护等级高,可防止杂物和虫害侵入。
4、简单有效的"五防"闭锁,防止误操作。
5、可配用VS1及VD4型真空断路器。
6、更换断路器简单,手车互换性能好。
7、柜体可靠墙安装、柜前维护,减少占地面积。
8、电缆室空间充裕、可连接多根电缆。
9、断路器室和电缆室可分别加装加热器,防止凝露与腐蚀发生。
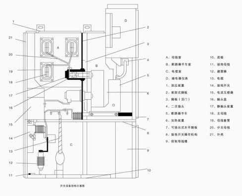
中置柜结构介绍
分为上中下三层,其中上层是母线室和仪表室,仪表室在前面、母线室在后面,两个小室之间有隔板隔开。中间层为开关室,是放置真空断路器的隔室,断路器采用手车式真空断路器,安装方便,维修和更换时只需要将断路器小车推出即可,无需断电。下层为电缆室,空间充足,可以连接多条电缆。

五防联锁功能
1、 防止带负荷合闸:真空断路器小车在试验位置合闸后,小车断路器无法进入工作位置。
2、防止带接地线合闸:接地刀在合位时,小车断路器无法进合闸。
3、防止误入带电间隔:真空断路器在合闸工作时,盘柜后门用接地刀上的机械与柜门闭锁。
4、防止带电挂接地线:真空断路器在工作时合闸,合接地刀无法投入。
5、防止带负荷拉刀闸:真空断路器在工作合闸运行时,无法退出小车断路器的工作位置。
KYN61-40.5开关柜又称为铠装移开式交流金属封闭开关设备,额定电压和频率分别为40.5KV和50(60Hz)。主要用于发电厂、变电站及工矿企业接受和分配电能之用,对电路起到控制、保护和检测等功能,还可用于频繁操作的场所。KYN61-40.5高压开关柜的柜体结构采用组装式,断路器采用手车落地式结构,手车车架中装有丝杠螺母推进机构,可轻松移动手车,并防止误操作而损坏推进机构。
KYN61-40.5高压开关柜型号及含义

KYN61-40.5高压开关柜主要特点
●KYN61-40.5开关柜的柜体采用优质冷轧钢板组装而成。
●配用绝缘真空断路器,断路器采用手车落地式结构,并具有互换性好,更换简单的特点。
●KYN61-40.5开关柜的手车架中装有丝杆螺母推进机构可轻松移动手车,并能防止误操作而损坏推进机构。
●主开关、手车、柜体之间的联锁均采用强制性机械闭锁方式,满足"五防"功能。
●KYN61-40.5开关柜的主回路采用绝缘母线。
●{电缆室空间充裕、可连接多根电缆。